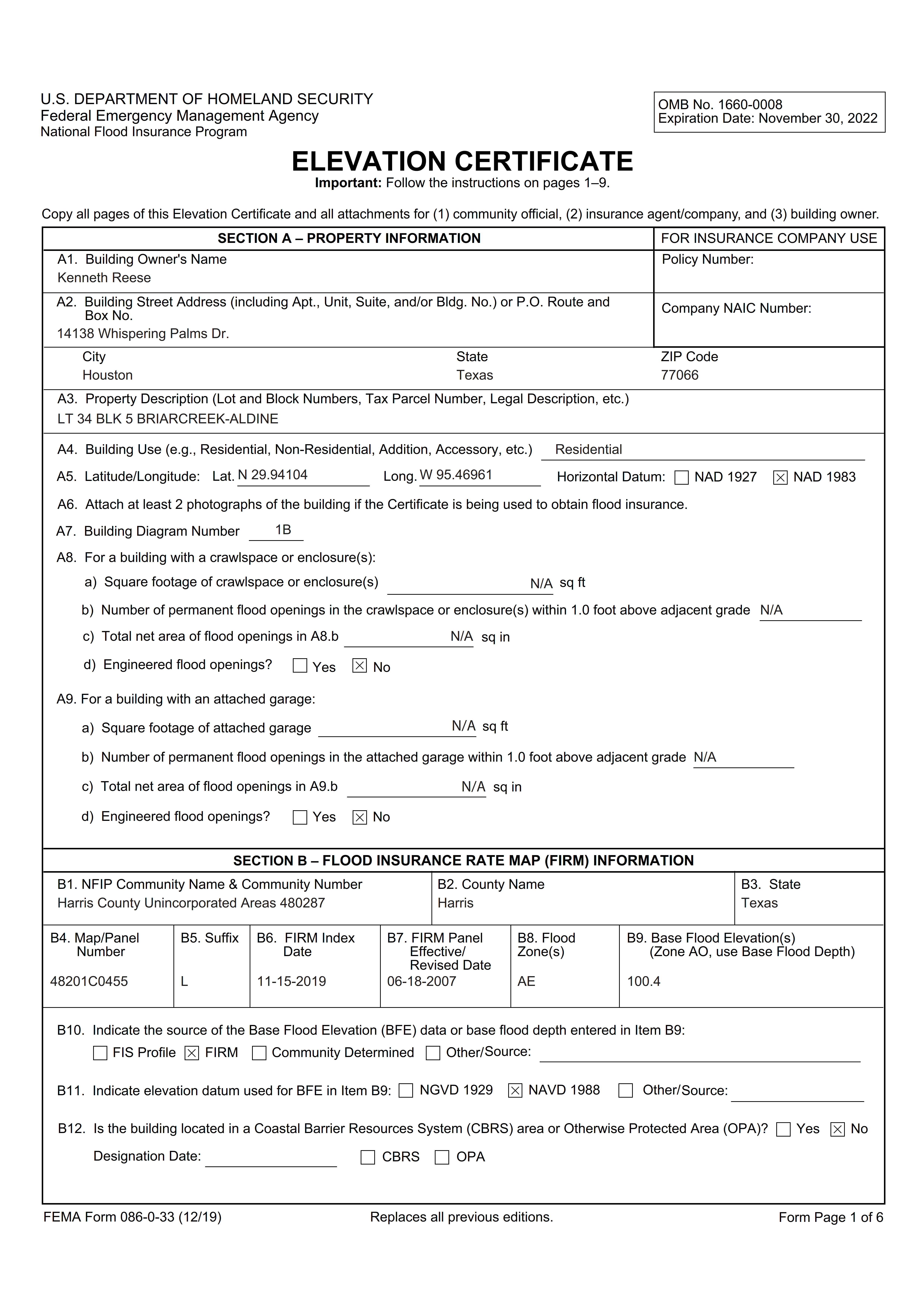
FEMA Elevation Certificate

DaRam Engineers Limited. provides FEMA elevation certificates to clients including insurance companies, title companies, builders and home owners needing to purchase flood insurance on a new home, construct a new home in accordance with FEMA requirements, or to clients hoping to reduce the cost of the premiums for their existing flood insurance.